Integrated Column Code Checks in ADAPT-Builder
The latest release of ADAPT-Builder (22.0.1) includes an integrated concrete column code check feature that allows users to easily check concrete...
1 min read
Candice Cobb : Jan 30, 2024 12:00:00 AM
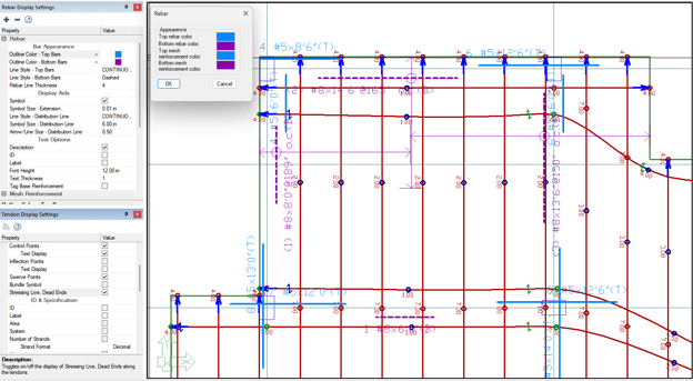
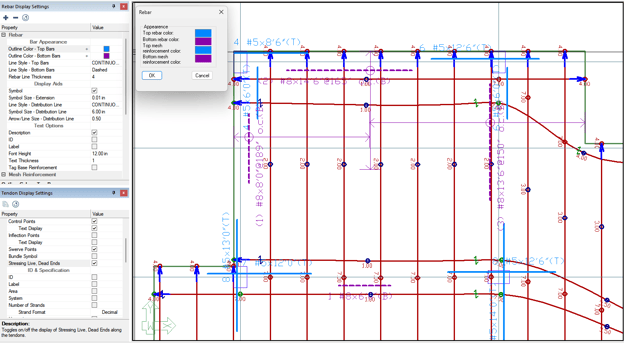
Elevate your outputs using the recently enhanced Tendon and Rebar Display Managers in ADAPT-Builder (23.0.0). ADAPT-Builder (23.0.0) gives users more control over the appearance of tendons and reinforcement thus saving time when it comes to creating tendon and reinforcement plans for submittals.

Seamless Output:
Print to a printer, PDF file, or export to CAD with confidence, ensuring that the output aligns with what has been set up in the model space.
Customize Reinforcement with Ease:
Effortlessly adjust line types, thickness, symbols, coloring, and more to meet CAD standards before printing to PDF or exporting to DWG/DXF files.
Tailored Tendon Text:
Choose what info to display along the tendon. Move tendon text easily to avoid overlap on the screen.

Layered Excellence:
Exported tendons and reinforcement and their associated information get exported to different layers in DWG/DXF files for easy modification within CAD.
Codes and Methodology:
The Tendon and Rebar Display Managers are available for all design codes.

For more information on ADAPT-Builder features, check out our release notes below.
The latest release of ADAPT-Builder (22.0.1) includes an integrated concrete column code check feature that allows users to easily check concrete...
The latest release of ADAPT-Builder (23.0.0) includes the ability to design one-way slabs and beams for the effects of torsion. Through the shear...
Reinforced and post-tensioned concrete structures in today's construction environment demand more efficient and reliable analysis, design, and...